Apple’s forthcoming $5 billion “spaceship” Apple campus may be designed to squeeze in a massive 13,000 employees, or the equivalent of 35 fully-filled Boeing 747s, but don’t worry: it’s got plenty of space for you, too.
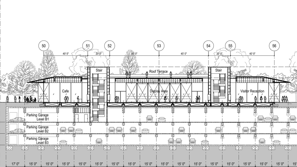
According to Apple’s plans for the new headquarters, the Apple 2 campus will include a glass-walled structure for visitors, boasting a 2,386-square-foot cafe, 10,114-square-foot gift shop, and rooftop viewing space, where visitors can gaze out over Apple’s domain while Tim Cook tells you that everything the light touches is his kingdom.

Photo: Apple

Photo: Apple
Given how much interest there has been in Apple’s cutting edge headquarters — which Tim Cook has labelled Apple’s “home for innovation and creativity for decades to come” — it seems inevitable that Apple would want to give fans a place they could visit in Cupertino, much as it does with its current 1 Infinite Loop campus.
The new visitor’s area will offer “visitors of Apple Campus 2 the opportunity to see the Main Building from the rooftop observation deck,” Apple wrote in a planning document.
Although don’t expect to catch a glimpse of the Apple Car circling on a test track or anything.
Source: Bizjournals